Back to residential portfolio
















White Heaven
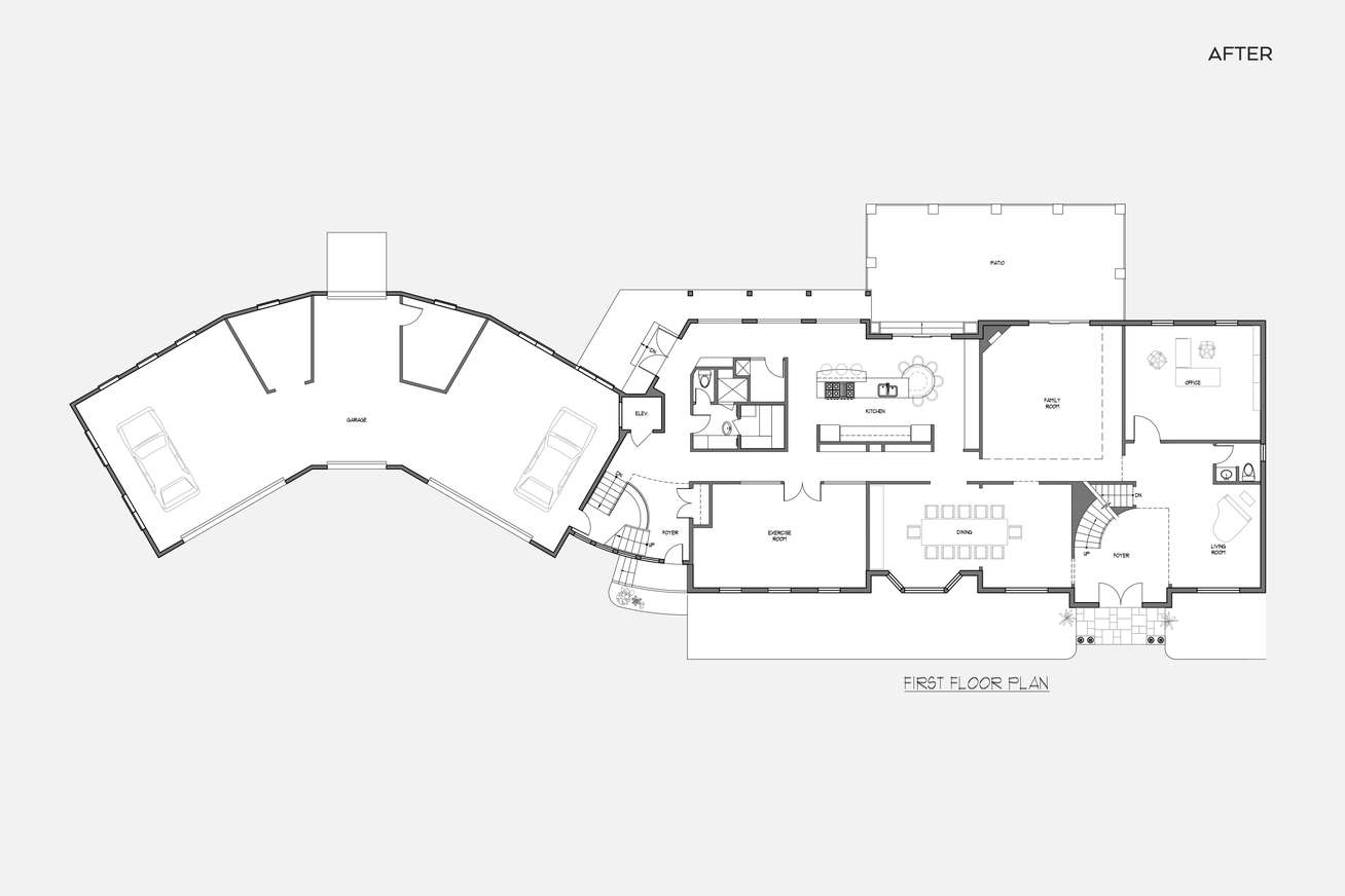
Three stages of renovation transformed a 1987 traditional suburban brick house into an almost 12,000 square feet transitional style mansion with new levels of comfort, entertaining and connection to the outdoors.
Over several stages of design that spanned eight years, we worked with the homeowners to create their dream home perfect for large-scale entertaining as well as day-to-day family life. The homeowners were especially interested in creating spaces that would support their health and fitness lifestyle.
In the first stage, we designed a majestic two story entrance hall featuring a curved marble staircase, and we renovated the adjacent living spaces and introduced a striking new porch addition with a distinctive red roof.
For the second stage, we added two floors to house the new gourmet kitchen ready for entertaining that opens to a covered pool and patio, as well as an exercise area with an adjacent spa, sauna, and grooming area for the family’s dogs. This addition features a second entrance with a curved glass foyer with open riser stair and elevator to a second level master suite. A French balcony opens facing the front lawn and a covered balcony at the rear overlooks the pool.
The third stage added a new five car garage with a multifunctional space on the second level.
















